A modern two-story house with a wooden slat exterior, glass doors, and an outdoor seating area with wooden chairs on a grassy lawn under a partly cloudy sky.

TEXAS RANCH HOUSE

Client Private Family of Six
Location
Crockett, Houston County, TX
Program
6BR Single Family House
Size
5,600 SF
Status
In Development

This ranch house floats a wooden box concealing private bedrooms above the uninterrupted Texas landscape. The rustic structure—clad with vertical shading fins to maintain privacy while preserving expansive views—contrasts the shared open spaces beneath it. It’s transparent checkerboard ground floor alternates indoor and outdoor spaces, blending inside and outside. These spaces can function individually as well as linked together, allowing for various configurations of larger living and entertainment areas. Natural light floods the house, penetrating through the skylight and down through the second floor into the ground floor through the double-story central atrium. 

Modern two-story house with a glass ground floor and a wooden slatted upper exterior, set in a grassy field with a cow grazing nearby and trees in the background under a partly cloudy sky.
Modern living room with large windows, wooden ceiling, and contemporary furniture including sofas, chairs, and a coffee table, with a view of outdoors featuring green trees.
A modern living room with wooden accents, large windows with vertical slats overlooking green trees, and a skylight ceiling with exposed wooden beams. There is a black sofa, a vintage floor lamp, and built-in bookshelves on either side of the window.
Diagram of a building showing its structural components, including exposed wood beams and joists, vertical wood shading fins, wood load-bearing walls, concealed wood beams and joists, vertical mullions, steel columns, and concrete foundation and footings.
A detailed architectural floor plan of a house's first floor, showing various rooms including garage, kitchen, living room, dining area, entertainment space, and other designated areas, with symbols for furniture and fixtures.
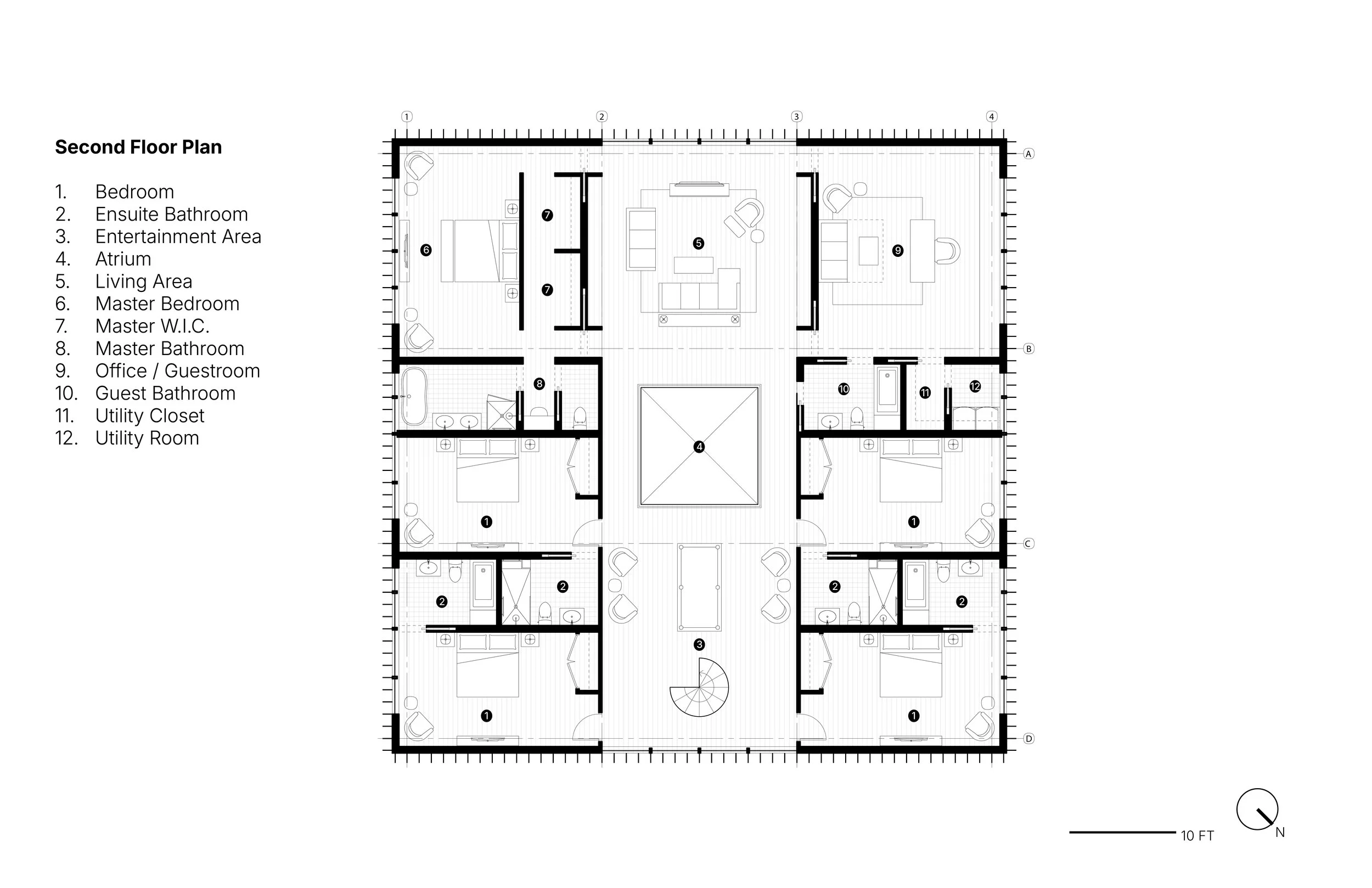
Floor plan of a house's second floor with labeled rooms including bedrooms, bathrooms, living area, entertainment, office, and utility rooms.